LAND
土地・分譲地
箕面市桜5丁目
販売価格3,980万円(税込)
- 住所
- 箕面市桜5丁目15-14
- 駅まで徒歩10分圏内!閑静な住宅街。企画型住宅で間取りプランお選びいただけます!
こんな方にオススメ!
- 子育て世帯に人気の箕面市桜ケ丘エリアでお住まいをお探しの方!
周辺環境
- 教育施設
- 南小学校 徒歩3分
第三中学校 徒歩18分
- ショッピング
- ダイエー桜井駅 徒歩9分
桜井市場 徒歩9分
DETAIL
土地詳細
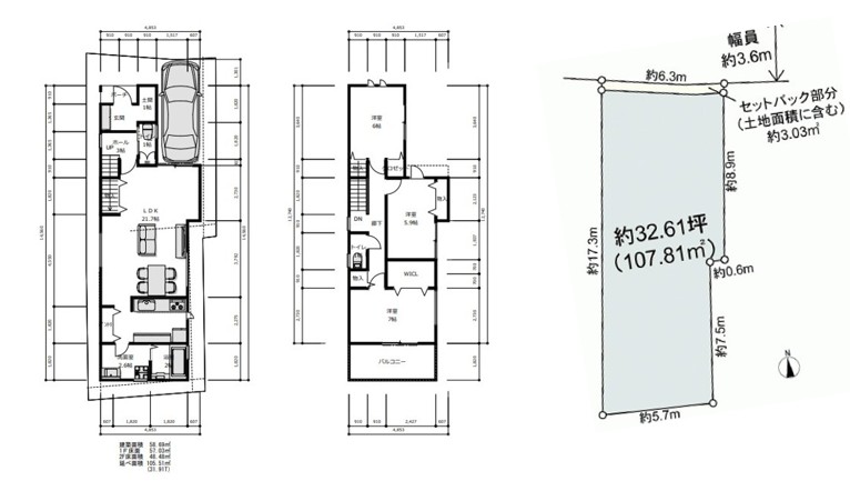
| 所在地 | 箕面市桜5丁目15-14 | 区画面積 | 108.57㎡ |
|---|---|---|---|
| 都市計画/用途地域 | 第1種中高層住居専用地域 | 地目/地勢 | 宅地 |
| 建ぺい率/容積率 | 60% / 200% |
|---|---|
| 交通/地域地区 | 阪急桜井駅 徒歩9分 阪急牧落駅 徒歩7 分 |
| 設備 | 電気、上下水道、都市ガス |
| 取引態様 | 仲介 |
| 備考 | ・セットバック面積約3.03㎡※土地面積に含む ・図面と異なる場合は現況優先になります。 ・別途(外構費、水道関連費、建築確認費用)120万円税込 □接道状況:公道 接面 約6.3m 北側 幅員 約3.6m |
WEBからのお問い合わせ
ご来場予約・カタログ請求はこちら










