MODELHOUSE
モデルハウス
高槻市東上牧2丁目 2期 2号棟
販売価格3,998万円(税込)
- 住所
- 高槻市東上牧2丁目880番287
- 間取り
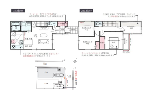
- 4LDK
周辺環境
- 交通機関
- 阪急京都線「上牧」駅 徒歩7分
- 教育施設
- 五領小学校 徒歩17分
五領中学校 徒歩20分
- 病院
- 藤井内科医院 徒歩3
医療法人清仁会水無瀬病院 徒歩16分
- 公共施設
- 上牧駅前郵便局 徒歩5分
京都信用金庫上牧支店 徒歩5分
- ショッピング
- フレスコ上牧店 徒歩7分
業務スーパー上牧店 徒歩7分
ローソン高槻東上牧1丁目店 徒歩5分
- 公園
- 東上牧2丁目たんぽぽ公園 徒歩2分
DETAIL
物件詳細
| 所在地 | 高槻市東上牧2丁目880番287 | 建物面積 | 87.97 ㎡ / 26.61 坪 |
|---|---|---|---|
| 間取り | 4LDK(W.I.C+S.I.C) | 土地面積 | 94.75 ㎡ / 28.66 坪 |
| 建ぺい率/容積率 | 50%/100% | 都市計画/用途地域 | 第一種低層住居専用地域 |
| 建物構造 | 木造アスファルトシングル葺2階建 | 地目/地勢 | 宅地 |
| 築年月日 | 2025年10月下旬 | 道路 | 北側 約4.2m公道、東側 約4.2m公道 |
| 沿線交通 | - |
|---|---|
| 交通/地域地区 | 阪急京都線 |
| 設備 | システムキッチン、食器洗浄乾燥機、浄水器、3口以上コンロ、全居室収納、ウォークインクローゼット、シューズインクローゼット、床下収納、モニター付インターホン、ディンプルキー、ダブルロックドア、シャッター雨戸、省エネ給湯器、全居室フローリング、上水道、下水道、都市ガス、電気、人感センサー付照明、ダウンライト、火災警報器(報知機)、複層ガラス、Low-E ガラス浴室暖房、浴室乾燥機、オートバス、追焚機能、シャワー付洗面化粧台、温水洗浄便座、トイレ2ヶ所、浴室に窓あり |
| 最寄駅 | 阪急京都線「上牧」駅 |
| 取引態様 | 売主 |
| 備考 | ●地盤20年保証 ●建物10年瑕疵保険付 ※電波障害等によるケーブルテレビ共聴アンテナの申込はお客様負担となります。 ※TVアンテナ・網戸・照明・カーテンレール等はオプションとなります。 ※図面と現況が異なる場合は現状を優先させていただきます。 ※広告掲載中に完成済みとなる場合がありますので、ご了承ください。 ※フラット35S(Bタイプ)利用可。(別途申請手数料が必要となります。) ※「税込み」とは消費税込みの金額となります。 ※車・バスの所要時間はインターネットサイトを参照しており、実際に異なる場合がございます。 ※建設中に設計仕様の変更が生じる場合があります。 ※内覧の際はスリッパに履き替えてくださいます様お願いします。 ■登記手続きを行う土地家屋調査士および司法書士は売主の指定となります。 |
WEBからのお問い合わせ
ご来場予約・カタログ請求はこちら







